站点地图
×
解决方案与产品
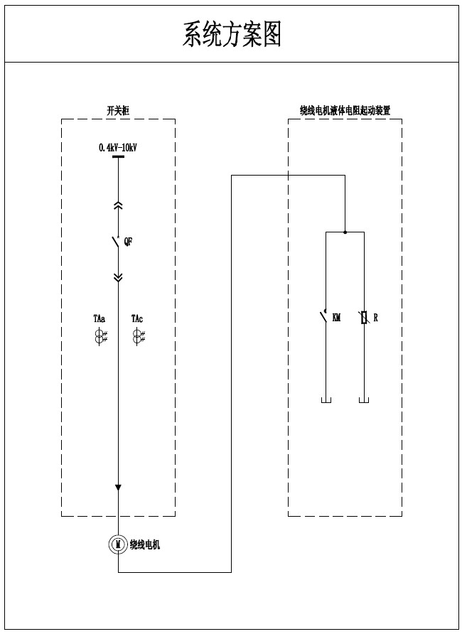
SYQ系列绕线电机液体电阻起动装置是在被控电动机的转子回路中串入三相星形联接的液体电阻,液阻随电动机的起动而自动接入。
SYQ系列绕线电机液体电阻起动装置是在被控电动机的转子回路中串入三相星形联接的液体电阻,液阻随电动机的起动而自动接入,阻值在预定的时间内无级减小,接近于零时自动切除,从而使电动机在接近额定电流和最大转矩的情况下无冲击平滑起动,起动过程对电网无冲击干扰,无谐波污染。适用于三相交流0.4kV、0.66kV、3kV、6kV、10kV,额定功率到45—10000kW的绕线式异步电动机的重载平滑软起动。
起动电流小且基本恒定,对电网无冲击;
起动电流不大于额定电流的1.3倍,可降低变压器的容量要求;
可低电压起动,电网电压能保证电动机正常运行,就能顺利起动;
可连续起动5~10次;
平滑起动,机械应力冲击小,有效保护电动机和传动机械;
特别适用于重载起动;
结构简单、安装维护方便,可靠性高。

环境温度:-10℃~+40℃;
相对湿度:<85%,不凝露;
海拔高度:不超过2000m(超过2000m须特殊设计);
安装地点:垂直倾斜度不超过50,无火灾、爆炸危险、导电尘埃、腐蚀性气体及剧烈振动。
Q/XZS1-2009 《SYQ系列电机液体电阻起动装置》
GB7251.1-2005 《低压成套开关设备和控制设备》

订货时须提供电机型号、额定功率、额定定子电压、额定定子电流、额定转子电压、额定转子电流、负载类型等信息。